Obrt za poslovanje nekretninama, vl. Kristina Dvojak

1 kupaona/e
2 soba/e
59.05 m²
N/A
Prodaja
Stan
5 mjeseci ago
422

Moderni, visokokvalitetni i funkcionalni stanovi!

U jesen 2025. godine u Virovitici, na parceli površine 1900m2, započinje gradnja novog stambeno-poslovnog objekta koji se sastoji od 34 stana i 2 poslovna prostora.

Stanovi i poslovni prostori nalaze se  u dijelu grada s brojnim sadržajima i savršenom lokacijom za obiteljski život.

U prodaji su stanovi od 50 m2 do 147 m2.
Kvalitetna gradnja
Vrhunska izolacija
Podno grijanje u svakoj prostoriji
Dodatna spremišta u prizemlju
Natkrivena parkirna mjesta

Nova stambeno-poslovna zgrada smještena je u ulici Matije Gupca, u neposrednoj blizini centra grada, gradske tržnice, autobusnog kolodvora, Veleučilišta, sajma Viroexpo, buduće osnovne škole i vrtića te sportsko-rekreacijskog centra.
Dovršetak je planiran u ljeto 2027. godine.

Svi stanovi će biti opremljeni podnim grijanjem, hrastovim parketom, unutarnjom stolarijom s magnetskim bravama te dodatnim spremištem u prizemlju.

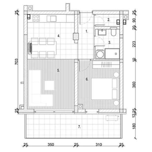
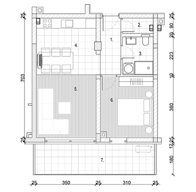
Predstavljamo Vam ponudu dvosobnog stana br.9 na 1 katu, netto površine 55.81m2.

Ovaj funkcionalan stan sastoji se od ulaznog hodnika, kuhinje sa blagovaonicom, ostave, kupaonice, dnevnog boravka,  spavaće sobe i loggie.

 

Za sve dodatne informacije smo na raspolaganju.

kontakt: +385 99 216 21 75 (Kristina)

athome.agencija@gmail.com

*Kupac ne plaća agencijsku proviziju

Osnovne informacije

Tip stana: Novogradnja
Cijena po kvadratu: N/A
Broj etaža: 1
Broj soba: 2
Kupaone: 1
Kat: 1
Ukupni broj katova: 3
Stambena površina: 59.05
Netto površina: 55.81
Godina izgradnje: 2027
Godina zadnje renovacije: 2027
Namještenost i satnje: N/A
Broj parkirnih mjesta: N/A
Balkon/Lođa/Terasa: loggia
Energetski razred: A+

Pogodnosti

  • Klima
  • Parket
  • Vlastiti parking
  • Protuprovalna vrata
  • PVC stolarija

Lokacija

Dodatne informacije

Grijanje: podno grijanje
Podaci o objektu: Novogradnja, Pristup za osobe s invaliditetom, Gradski plin, Gradski vodovod, Gradska kanalizacija, Lift
Dozvole i potvrde: Vlasnički list, Građevinska dozvola
Funkcionalnosti i ostale karakteristike: Protuprovalna vrata, Zasebni ulaz u objekt, Video Portafon
Orijentacija stana: N/A
Broj kupaonica s WC-om: N/A
Ostali objekti i površine: N/A